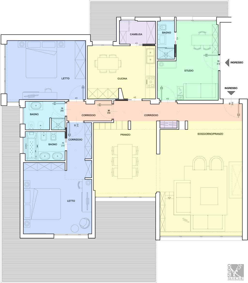
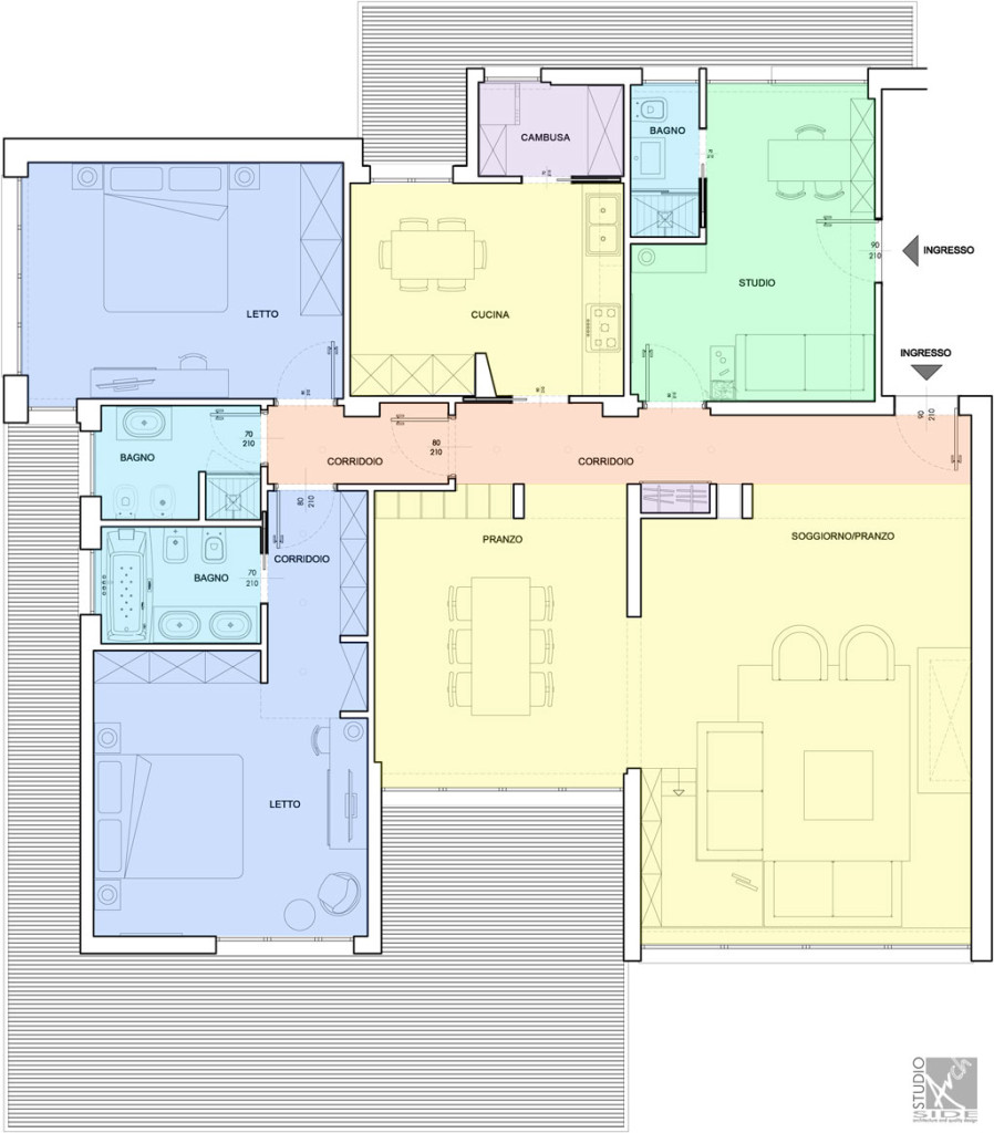
BARILATTI APARTMENT

Client
Private
Architects
Studio ArchSIDE
Year
2010
Program
Housing
Status
Completed
Scale
250 mq

plan

detail