Menu
Close
Index
Prev
Next
Share
Navigazione principale
Home
Work
Profile
News
Contact
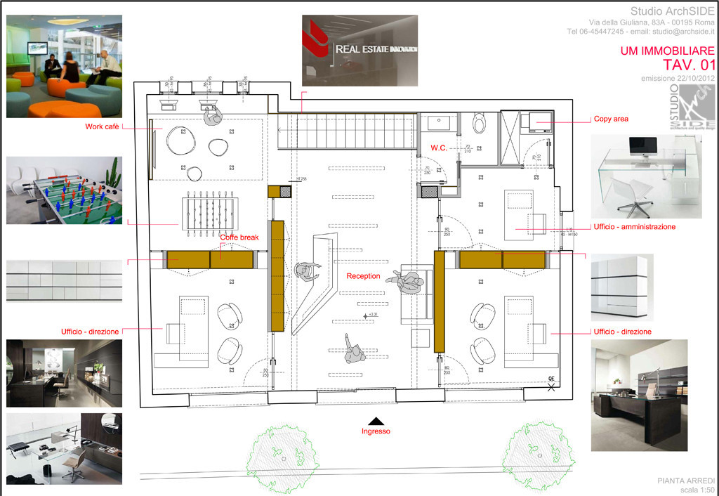
Interiors
Office
U.M. IMMOBILIARE
Client
Private
Architects
Studio ArchSIDE
Year
2013
Program
Office
Status
Completed
Scale
150 mq
plan
render
Share