Menu
Close
Index
Prev
Next
Share
Navigazione principale
Home
Work
Profile
News
Contact
Housing
Interiors
Residential
VILLA HUGO PRATT
Client
Private
Architects
Studio ArchSIDE
Year
2014
Program
Residencial
Status
Completed
Scale
500 mq
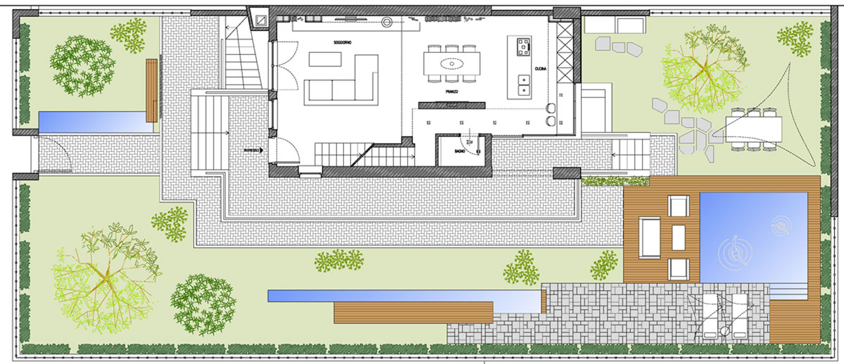
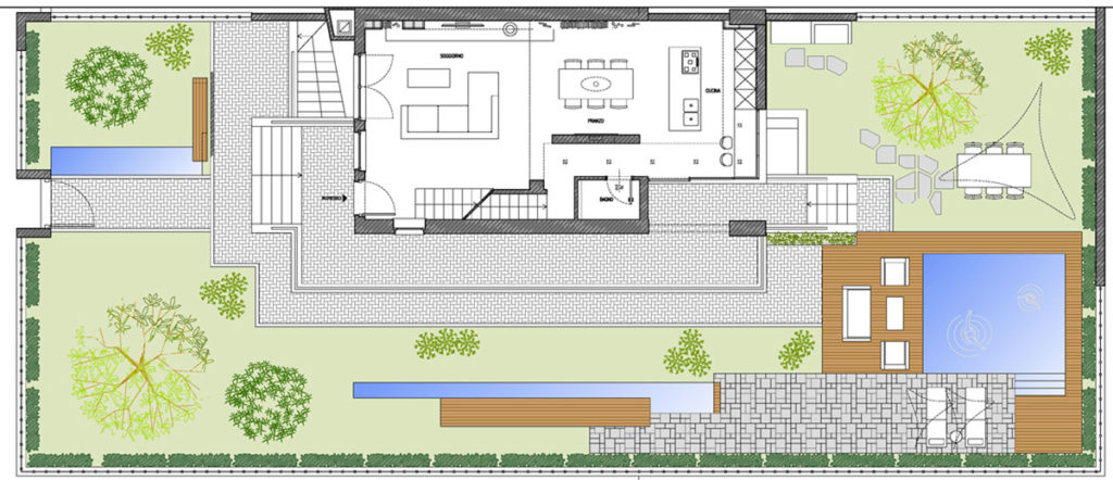
plan
POST OPERAM
POST OPERAM
Comparison between
ANTE OPERAM
POST OPERAM
ANTE OPERAM
POST OPERAM
ANTE OPERAM
POST OPERAM
render
Share