Menu
Close
Index
Prev
Next
Share
Navigazione principale
Home
Work
Profile
News
Contact
Design
Housing
Interiors
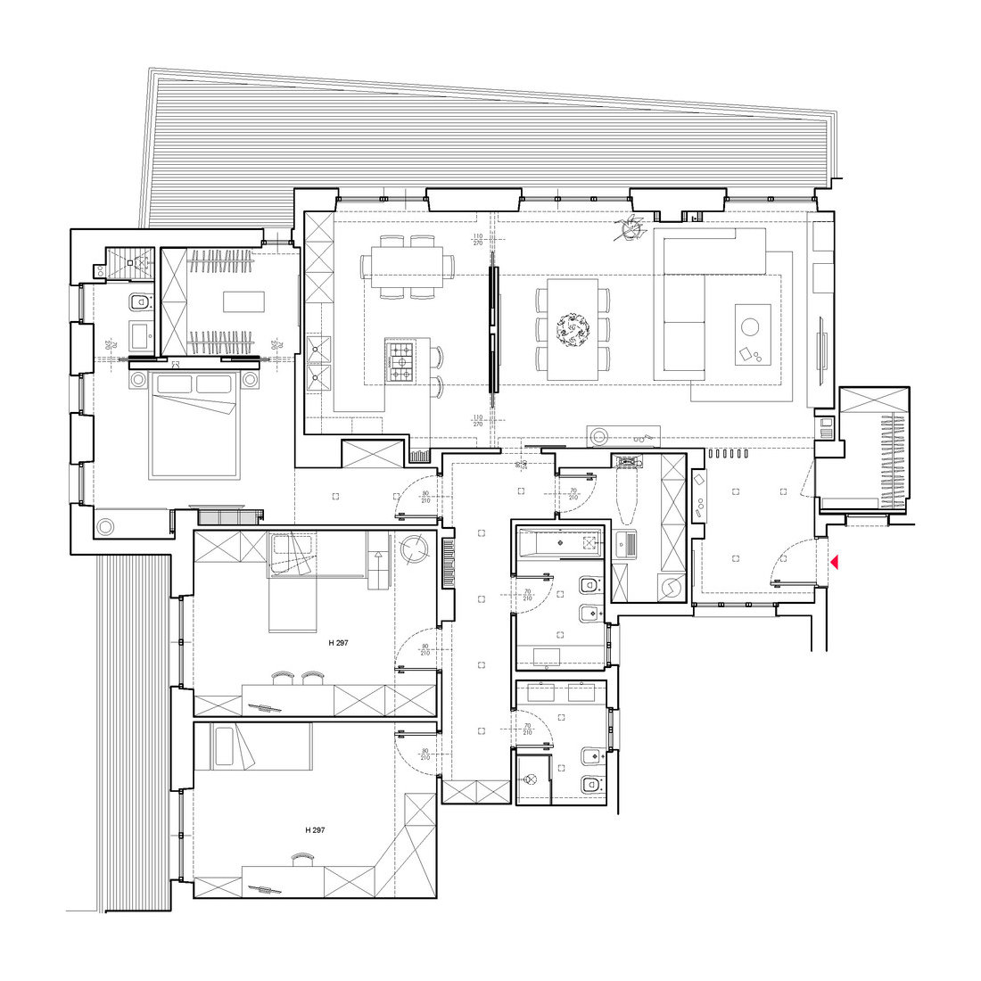
ASMARA
Ristrutturazione di un’appartamento di circa 155 mq con dotazioni ad elevata prestazione energetica.
Anno del progetto: 2017
Paese: Italia
Share