Client
Private
Architects
Studio ArchSIDE
Year
2017
Program
Interiors
Status
Completed
Scale
130 mq

Ristrutturazione di un’appartamento di circa 135 mq con dotazioni ad elevata prestazione energetica.

gallery

 

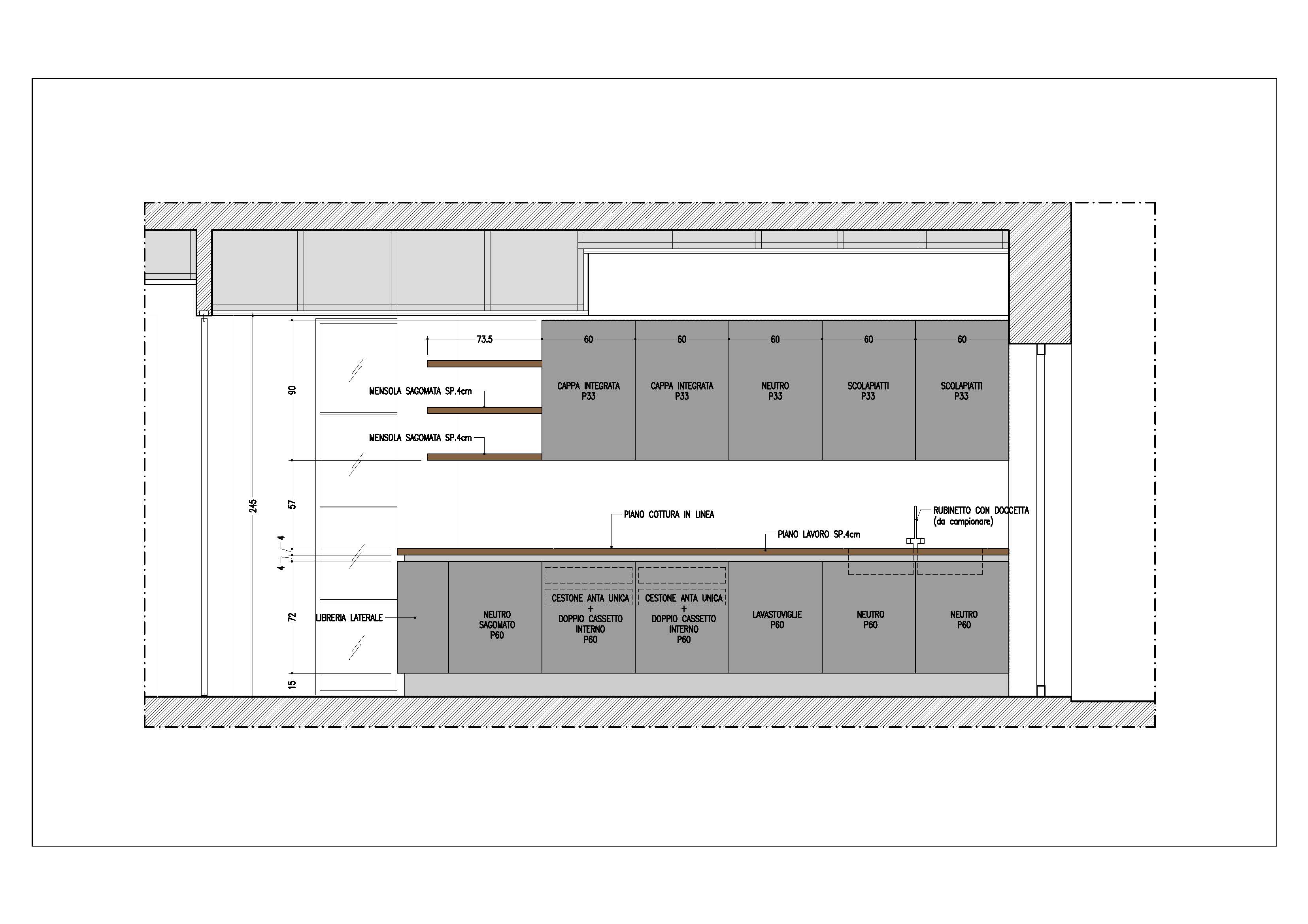
SEZIONI DELLA CUCINA